[REZERVISANO]

Prodaja, Stan, 62.13 m2, Trebinje, Centar

Po dogovoru ID: BKNG1H
Struktura
Dvosoban
Površina
62.13m²
Namještaj
Nenamješten

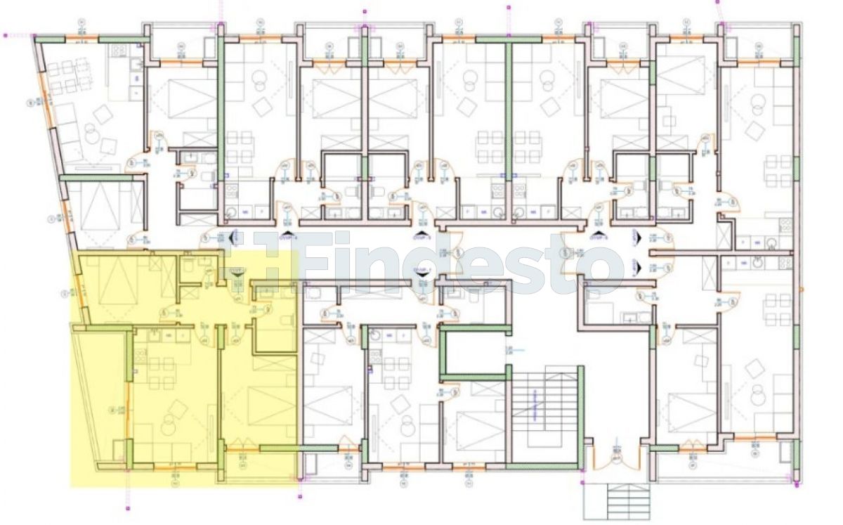
Prodaje se dvosoban stan površine 62,13 m², smješten na visokom prizemlju luksuznog stambeno–poslovnog kompleksa na južnoj kapiji Trebinja.

Raspored prostorija:

Dnevni boravak + trpezarija – 15,93 m²

Kuhinja – 3,56 m²

Kupatilo – 4,54 m²

Soba – 10,79 m²

Soba – 12,88 m²

Ulaz – 4,72 m²

WC – 1,71 m²

Lođa – 2,14 m²

Lođa – 5,87 m²

O projektu:

Luksuzni stambeno–poslovni objekat modernog arhitektonskog dizajna

Visokokvalitetna gradnja i savremeni materijali

Lokacija: južna kapija Trebinja, u blizini nove bolnice i novog tržnog centra

Do centra grada svega 7 minuta hoda

Otvoren pogled na sve strane zahvaljujući izdvojenosti lokacije

Većina balkona okrenuta prema jugu – puno svjetlosti tokom dana

U suterenu poslovni prostori i garaže, dodatna garažna mjesta u centralnoj garaži

Ukupno 199 stambenih jedinica (garsonjere, jednosobni i dvosobni stanovi)

Kupovina direktno od investitora.

Namještaj
Nenamješten
Sprat
Visoko prizemlje
Broj kupatila
1
Status
U izgradnji
Grijanje
Klima
Parking
Garaža, Privatni parking
  • Klima
  • Lift
  • Kamere
  • Interfon
  • Internet
  • Kablovska TV
  • Alarm
  • Terasa
  • Pristup za invalidska kolica